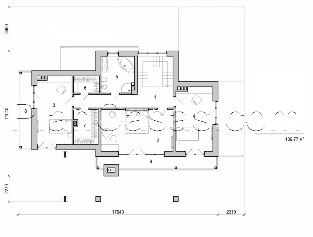
219. Two storey house

$999.00

Category:
Tags:

Related products